LOKAL NR 3 – 13,96 m² | PARTER |

Kompaktowe mieszkanie - mały metraż, wielki potencjał!

Ten lokal to jedna z najbardziej kontrowersyjnych, a jednocześnie najbardziej poszukiwanych propozycji w kamienicy przy ul. Długopolskiej 10

Ma kompaktowe 13,96 m², ale zapewnia pełną funkcjonalność: aneks kuchenny, łazienkę z prysznicem oraz miejsce do spania. Tego typu małe, samodzielne mieszkania z księgą wieczystą są dziś praktycznie niedostępne na rynku, co czyni je atrakcyjną opcją przy niskim budżecie.

1. UKŁAD

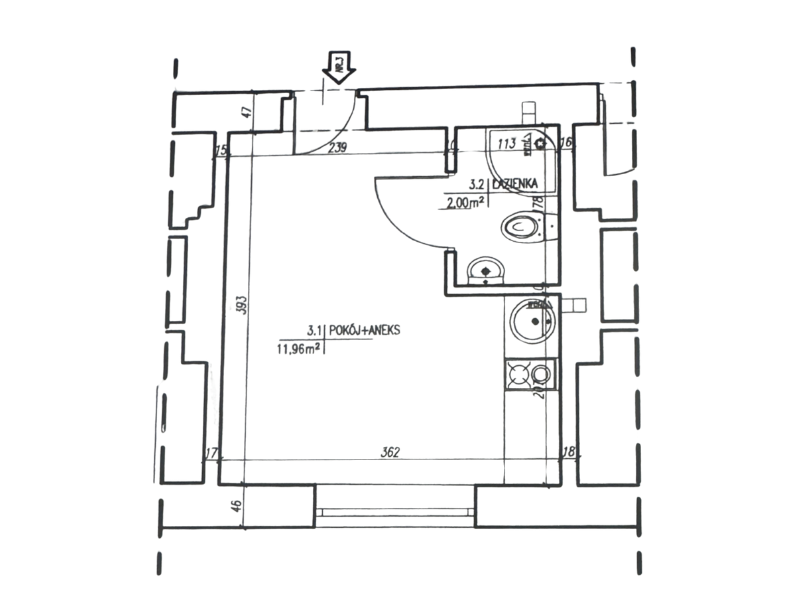
Lokal nr 3 to kompaktowe studio o powierzchni 13,96 m², zaplanowane wokół jednego głównego pomieszczenia z wyraźnie wyodrębnioną strefą pod aneks kuchenny. Układ wynika bezpośrednio z rozmieszczenia pionów wodnych i ścian konstrukcyjnych.

Wnętrze składa się z:

  • pokoju z miejscem na aneks – 11,96 m²
    Aneks kuchenny przewidziano po prawej stronie, wzdłuż pionu instalacyjnego i ściany łazienki. Ten układ pozwala wykonać krótką, funkcjonalną zabudowę z małym zlewem, płytą 2-palnikową i górnymi szafkami.
    Pozostała część pokoju tworzy  strefę dzienną, w której mieści się sofa jednoosobowa lub kompaktowe łóżko, niski stolik oraz szafa ustawiona przy bocznej ścianie.

  • łazienki 2,00 m²
    Obok wejścia, z układem umożliwiającym montaż prysznica w narożniku, umywalki i WC. Pion jest logicznie skomunikowany z aneksem, co ogranicza koszty.

  • wejścia z klatki schodowej
    Drzwi otwierają się na krótką strefę wejściową, co pozwala oddzielić część mieszkalną od ruchu z klatki

2. NAJWAŻNIEJSZE ATUTY

Lokal ma prosty i sensowny układ, dzięki czemu – mimo niewielkiego metrażu – można go urządzić funkcjonalnie i ekonomicznie.

  • wyraźnie wyodrębnione miejsce na aneks wzdłuż pionu – maksymalna ergonomia,

  • brak zbędnych podziałów i strat metrażu,

  • możliwość stworzenia 2 stref: wypoczynkowej i kuchennej,

  • pełna łazienka z klasycznym układem sanitariatów,

  • ustawna część dzienna z miejscem na sofę, stolik i szafę,

  • idealny lokal pod wynajem jednoosobowy,

  • bardzo niski koszt wyposażenia dzięki kompaktowej zabudowie.

3. MOŻLIWOŚCI ARANŻACYJNE

Przestrzeń jest kompaktowa ale przemyślana, I DAJE  możliwości wygodnego urządzenia, zarówno pod kątem mieszkania, jak i najmu.

  • Zabudowa aneksu w linii prostej na długości ściany łazienki (ok. 1,6–1,8 m).

  • Szafa pełnej wysokości może stanąć na lewej ścianie – nie blokuje światła ani ciągów komunikacyjnych.

  • Sofa jednoosobowa lub łóżko 90–120 cm ustawia się na ścianie naprzeciw okna.

  • Mały stolik lub biurko przy lewej ścianie – dobre miejsce do pracy.

  • W łazience możliwa zabudowa prysznicowa w narożniku bez kolizji z umywalką i WC.

  • Układ pozwala na zrobienie „mikro-studio” z wszystkimi funkcjami mieszkalnymi.

4. STANDARD

Lokal jest po generalnym remoncie i przygotowany w standardzie deweloperskim

– nowe tynki i wylewki,
– ogrzewanie podłogowe w całym lokalu,
– nowe instalacje: elektryczna, wodno-kanalizacyjna i gazowa,
– nowe przewody, rury, kable i rozprowadzenia mediów,
– przygotowane przyłącza do kuchni i łazienki,
– nowe okna i drzwi wewnętrzne,
– budynek po pełnej modernizacji, w tym z nową kotłownią gazową.

Mały metraż, wielki potencjał

Lokal nr 3 to kompaktowe studio zaprojektowane z myślą o jednoosobowym, ekonomicznym mieszkaniu. Przemyślany układ z wyraźnym miejscem na aneks, pełną łazienką i ustawnością głównego pomieszczenia pozwala stworzyć w pełni funkcjonalne mikro-mieszkanie. Lokal nadaje się zarówno do zamieszkania, jak i jako inwestycja pod wynajem, oferując niski koszt aranżacji i wysoką praktyczność użytkową.

Cena lokalu nr 3: 289 000 zł
Powierzchnia: 13,96 m²
Forma własności: pełna własność + księga wieczysta

Warszawa Włochy - inwestuj w pewny adres

Skontaktuj się z osobą odpowiedzialną za inwestycję i sprzedaż

Nasz ekspert pomoże Ci w wyborze najlepszego lokalu 

Justyna Mróz

Ekspert ds. inwestycji deweloperskich

Godziny Pracy

Pon – Piątek 8.00- 18.00

Dane do kontaktu:

Tel: 535-333-533

E-mail: j.mroz@progresscapital.pl

©2019. Progress Capital sp. z o. o.