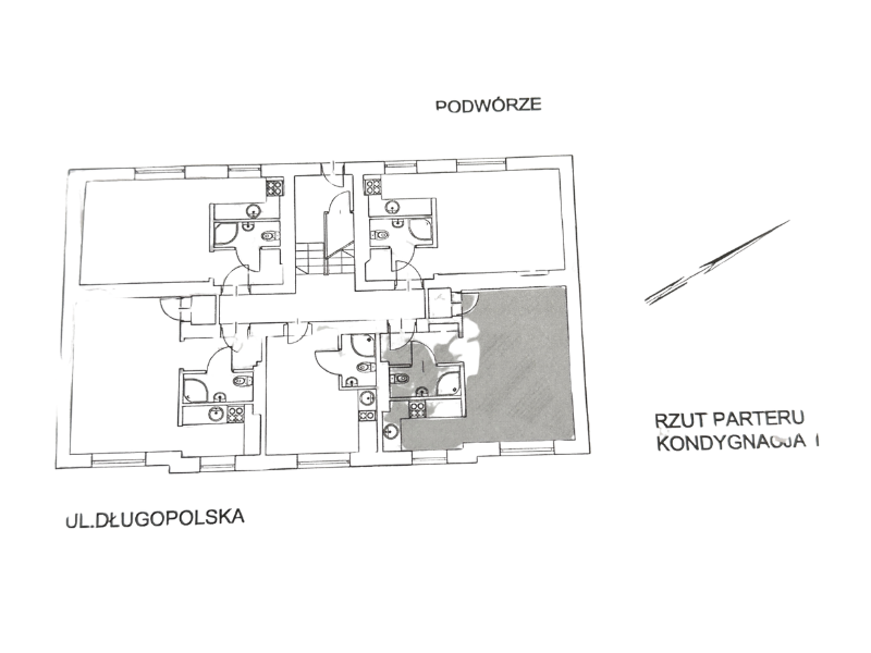
LOKAL NR 2 – 28,14 m² | PARTER |

DUŻE, USTAWNE STUDIO Z ODDZIELONYM ANEKSEM I POM. GOSPODARCZYM

Ten lokal to jedna z najbardziej funkcjonalnych propozycji w kamienicy przy ul. Długopolskiej 10.

 Zaprojektowany tak, aby w kompaktowym metrażu zapewniał pełen komfort codziennego użytkowania, sprawdzi się zarówno jako mieszkanie “na start”, jak i jako pewna inwestycja pod wynajem.

1. UKŁAD

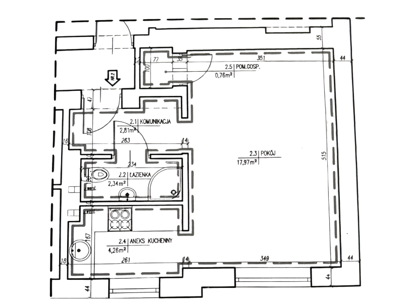
Lokal nr 2 to duże studio o powierzchni 28,14 m², z bardzo korzystnym, prostokątnym układem. Wnętrze składa się z:

  • dużego pokoju 17,97 m² – ustawna przestrzeń, w której zmieści się sofa z funkcją spania lub łóżko 140–160 cm, pełnowymiarowa szafa oraz strefa jadalniana,

  • oddzielonego aneksu kuchennego 4,26 m² – znajduje się we wnęce, co pozwala utrzymać porządek wizualny i ułatwia aranżację części dziennej,

  • łazienki 2,34 m² – z miejscem na prysznic, umywalkę i toaletę,

  • komunikacji 2,81 m², która oddziela strefę wejściową od części mieszkalnej,

  • pomieszczenia gospodarczego 0,76 m² – rzadko spotykany atut w kawalerkach; miejsce na pralkę, półki lub zabudowę gospodarczą.

2. NAJWAŻNIEJSZE ATUTY

Lokal wyróżnia się pełną funkcjonalnością i metrażem, który pozwala wygodnie mieszkać jednej lub dwóm osobom. Oddzielony aneks kuchenny oraz pomieszczenie gospodarcze podnoszą praktyczność wnętrza i rzadko występują w kawalerkach tej wielkości.

– ustawny układ bez strat metrażu,
– możliwość komfortowego umeblowania części dziennej i nocnej,
– aneks kuchenny poza strefą wypoczynku,
– pomieszczenie gospodarcze zwiększające wygodę użytkowania,
– lokal o jednym z najlepszych układów na parterze.

3. MOŻLIWOŚCI ARANŻACYJNE

Przestrzeń daje szerokie możliwości wygodnego urządzenia, zarówno pod kątem mieszkania, jak i najmu.

– miejsce na szafę w zabudowie,
– sofa narożna lub łóżko 140–160 cm,
– stół dla 2–4 osób przy aneksie,
– możliwość optycznego wydzielenia części sypialnianej (np. ażurową ścianką),
– schowane pomieszczenie gospodarcze odciąża część dzienną z przechowywania.

4. STANDARD

Lokal jest po generalnym remoncie i przygotowany w standardzie deweloperskim

– nowe tynki i wylewki,
– ogrzewanie podłogowe w całym lokalu,
– nowe instalacje: elektryczna, wodno-kanalizacyjna i gazowa,
– nowe przewody, rury, kable i rozprowadzenia mediów,
– przygotowane przyłącza do kuchni i łazienki,
– nowe okna i drzwi wewnętrzne,
– budynek po pełnej modernizacji, w tym z nową kotłownią gazową.

Lokal ma bardzo korzystny stosunek ceny do funkcjonalności i jakości wykonania. Dzięki generalnemu remontowi budynku oraz całkowicie nowym instalacjom nie wymaga żadnych nakładów technicznych, a ogrzewanie podłogowe i nowa kotłownia zapewniają niskie koszty eksploatacji. To gotowy produkt inwestycyjny, który łatwo wykończyć i szybko wynająć. Lokal sprawdzi się także jako pierwsze, własne mieszkanie dla osoby szukającej niewielkiej, nowoczesnej i ekonomicznej przestrzeni w dobrze skomunikowanej części Warszawy.

Warszawa Włochy - inwestuj w pewny adres

Skontaktuj się z osobą odpowiedzialną za inwestycję i sprzedaż

Nasz ekspert pomoże Ci w wyborze najlepszego lokalu 

Justyna Mróz

Ekspert ds. inwestycji deweloperskich

Godziny Pracy

Pon – Piątek 8.00- 18.00

Dane do kontaktu:

Tel: 535-333-533

E-mail: j.mroz@progresscapital.pl

©2019. Progress Capital sp. z o. o.